ZDP型振動平臺又叫振實臺,主要應用于物料的振實,減少物料內的空氣和縫隙,振動平臺廣泛地使用在冶金、化工、食品、建材、磨料、模具鑄造造型等行業的專用設備,根據生產特點和要求選用不同型號的振動平臺。
一、振動平臺的種類和特點:
振動模式有:1、一維。2、二維。3、三維。
彈簧種類:1、金屬彈簧。2、橡膠彈簧。3、空氣彈簧。
振動頻率:1、工頻。2、可調頻。
振動平臺在使用過程中,可能通過調節振動電機激振力大小,來使平臺上物料實現理想的成型形式。
振動電機為激振源,噪聲低、耗電小、維護簡單。
ZDP系列振動平臺結構簡單、運行可靠、重量輕、體積小、安裝簡便。
振動平臺可分為上下振動、螺旋振動和三維振動三種振動方式。
二、技術參數:
振動頻率:調頻0~50HZ
振幅:2~5mm
*大輸出功率:6KW
承載重量:~10噸
振動平臺面尺寸:A—長度mm,B—寬度mm
主要技術參數表:

注:此表為上、下振形式振動平臺技術參數,僅供參考;此外可以根據用戶實際使用需要定做臺面大小來選用振動電機數量及功率。
三、設備結構組成
振動平臺系統由振動平臺和電控柜(另配)組成,
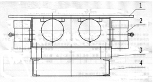
振動平臺(如圖1)由:1、振動平臺臺體 2、振動電機 3、減震彈簧 4、下座架組成。
圖1

四、操作方法
1、檢查振動平臺是否處在正常位置,各連接部分有無松動(特別是振動電機的緊固螺栓)。
2、接通電源,檢查AC,AB,BC三相電源是否正常工作。
3、選擇工頻或調頻。
4、選擇振動模式(圖2)。
圖2

操作按鍵 振動模式

5、三維振動臺操作,依次按“X方向”、“Y方向”、“Z方向”開關,振動臺開始振動。
6、振動臺停止運行時,將調頻旋鈕“R”轉到零位,依次再按下“X方向”、“Y方向”、“Z方向”按鈕,振動臺停止運行。
Strictly check the product details we only do excellent products




Treat every minute of product quality harshly